April 2006 Process Puzzler: Fixing a Fouled Flue Gas System
QUESTION FROM APRIL'S CHEMICAL PROCESSING
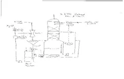
Our flue gas scrubbing system is showing signs of wear; see Figure 1. The overall pressure drop has increased about 20%, the acid concentration produced in the absorber is dropping, the magnetic flow meter measuring the acid shows a higher flow rate than expected, it is becoming difficult to control the acid concentration in the scrubber and the speed of the exhaust fan is tracking upward. Upstream of the venturi is a fluid bed coke reactor. What can be done to eliminate the problem(s) What do you think is the root cause?
Figure 1
Fouled absorber?
I would suspect that there is plugging or internal failure in the absorber column. The decrease in the acid concentration suggests that there is a loss in the contact area between the scrubber water and the flue gas. The loss of contact area is increasing the load on the VFD exhaust fan. It is also possible that some material from the fluidized reactor has migrated to the absorber tower. I would suggest completing a pressure survey of the entire system first to isolate the source of the increased DP. If it is the absorber column, you could try the following: increase the scrubber water flow rate (make-up) to the absorber increasing the mass transfer in the column. This is a good short-term solution. If this does not work, it may be necessary to enter the tower and inspect the packing and internals and repair, or replace, as necessary.
Brad Piggott, Production Engineer
Air Liquide America, Freeport, Texas
Test the equipment to define problem
Assuming that the increased pressure drop and reduced acid concentration are related, the venturi may not be working properly, the packed bed unit may be plugged or absorber inlet gas flow may have increased. If additional information is not available, I suggest that the operator repair the acid pump and replace the venturi nozzles. I expect that the root cause of the problem is corrosion in the acid feed pump or venturi nozzle. A second solution is to replace the acid production control valve. Under this case, the root cause is a defective acid control valve that does not sufficiently restrict the product acid flow --- producing a low strength acid. There may be internal problems with the absorber. The root cause, in this case, is an increase in scrubbed gas (probably from a gas leak in the absorber or duct). Increasing the scrubbed gas increases absorber pressure drop, dilutes the acid in the vapor phase and thereby reduces efficiency. Additional information could be obtained by determining the source of the pressure drop.
I would look at the venturi since this might not require a plant shutdown. The first step would be to check the acid flow to the venturi. The venturi spray nozzles are the key to inducing gas flow and good contact efficiency. Assuming good level control in the acid tank and a steady acid production flow, the output pressure of the pump would be a good indication of the flow to the venturi (using the pump curve and baseline information on the venturi and pump). High output pressure indicates low flow. If the flow is low, then the piping or venturi spray nozzles may be plugged; the solid can be determined once the pipe is disassembled and inspected . Closing the acid control valve for a measurement can also confirm plugging. A reduced flow to the venturi lowers the pressure drop across the venturi (slightly) and reduces the venturis efficiency. Alternatively, a low output pressure indicates either the pump or the venturi needs repair. If temporarily blocking in the pump (after the output pressure) raises the pressure to design shutoff head, then the pump is good and the venturi spray nozzles are eroded and in need of repair. Also, inspecting the acid tank bottoms may be useful --- look for brick from the venturi lining. If the flow to the venturi is normal, the venturi throat may be plugged with solids carried over from the coke reactor. Typically, this occurs where the liquid and gas contact: the throat. Throat-plugging tends to separate the liquid flow from the gas flow --- this reduces gas-liquid contact. The efficiency of the absorber decreases and venturi pressure increases. A high pressure lance, near the throat, may be able to remove deposits from the venturi.
Pressure drop in the packed beds might occur in either the mist eliminator or the packed beds of column inlets. A pressure survey should determine where the increased pressure drop is occurring. Heavy washing of the mist eliminator or inlet piping might reduce the pressure drop. If the increased pressure drop is in the packed beds, plugging and channeling might reduce absorption efficiency and increase pressure drop. Heavy washing of the packed beds might reduce the plugging. Alternatively, dumping and washing or replacing the packing may be required.
David A. Milligan, P.E., C.C.E., Principal Engineer
Matches, Edmond, OK
Precipitate or carry-over?
With the limited information available, it is hard to be comprehensive. Lets start with some questions. Is coke from the upstream fluid bed reactor allowing small coke particles to collect in the absorber? On the next turn-around, carefully clean out the absorber, learning what is precipitates are in the interstices, if any, to cause the higher delta P. If the system is scrubbing SOx, then they must be getting precipitants. To reduce delta P, consider replacing the packing. Install a packing with a reduced pressure drop but be careful to consider performance and durability.
Tom Murphy, CEO,
Puritrol, Inc., Centerville, Mass.
Inspect the equipment
Either the venturi or the absorber, or both, need to be inspected. What to look for? For the venturi, inspect the spray nozzles. If they are worn, the water leaving these nozzles therefore had become a jet, rather than a spray. The entire overall condition of the venturi needs to be checked. For the absorber, packing should be inspected for possible fouling, packing breakdown and other problems. If the packing is observed to be compromised, then replacement with new packing may be justified. The absorber mesh pad needs to be inspected for possible fouling.
Figure 2
Figure 3
James Eldridge, Engineer
Lantec Products, Norwood, Mass.
Collapsed packing or internal failure
It would appear your scrubber and absorber internals are falling apart. This would explain the lack of mass transfer (lower acid concentration, higher flow) and the increased pressure drop (packing is becoming compacted).With a compacted bed and increased pressure drop, the flow to the fan is restricted causing the motor to speed up (like putting your hand on the inlet hose to your home vacuum). I would suggest the internals to the scrubber be inspected and repairs made as are necessary.
Jim Darby, Process Design Engineer
LANXESS Inc., Sarnia Ontario
Packing is plugged
Check the differential pressures across the column beds. If the exhaust fan is running at a higher speed, plugging of the packing may be the root cause. Flushing or cleaning or changing the internals would correct the problem. Another cause of poor concentration or scrubbing would be "channeling" of the liquid as is descends through the packed section. If one or more of the spray nozzles are clogged or even partially clogged, liquid will not be evenly distributed through the packing. Absorption efficiency falls off and you see the acid concentration fall off.
Henry H. Hesser, Staff Technical Specialist
Busch, Inc., Virginia Beach, VA 23452
Inspect the flow meter
There may be more than one problem and thus there may be more than one root cause. My conclusion is that the mag meter should be tested or replaced and the packing should be inspected or replaced. Inspections may reveal what is fouling the meter and the packing. It helps if you know the reliability of each of the systems. An in-house history would be useful. A comparison between current performance and new performance, based on an operator logbook, could narrow the causes.
Dirk Lohry, President
Nulex, Inc., Sioux City, Iowa
Failed venturi
Your puzzle generated a lot of discussions around the office. What follows is a summary of some of our discussions: 1) failure of the venturi, 2) fouling in the absorber packing, 3) and, a combination of the first two.
An increase in particulate loading, perhaps from a defective cyclone (upstream), could be overwhelming the venturi; this loading could plug the nozzles in the venturi throat and the throat itself. Plugging would also cause the flow through the magnetic flow meter to increase for a centrifugal pump; the flow to the venturi would decrease. The fan speed would increase, in response to the throttled flow at the venturi throat -- the flow of gas to the absorber would decrease and the acid produced would decrease. The absorber packing could be fouled causing poor contact between the gas and liquid. The operators would decrease the throughput of the gas as much as possible to increase the acid concentration. Unless the flow to the venturi was cut back substantially, the flow to the flow meter would increase.
Ravi Rangan, Engineer VI,
USEPA, New Castle, DE
Redesign the process!
The process as presented does not allow sufficient time for the acid to concentrate in the absorber. I would suggest the following design changes: a venturi feeds a cyclone and a density meter measures the acid concentration. See the sketch. Add a hydro cyclone to allow most of liquid to return to acid tank with the partially scrubbed gas stream to go forward to the main scrubber. By putting the gas stream through these two devices it would minimize the solids going along with the gas stream to the absorber which in turn causes plugging and increasing pressure drop. The use of a level indicating controller in the Absorber tank tied to the flow control valve on the inlet water should allow for good scrubbing; the customer should check the efficiencies to ensure that this makeup rate will still make all environmental permits. A minimum make-up flow is for startup (to keep the packing cool). Using a level-indicating controller for the strong acid tank allows the proper transfer from the main scrubber. A density meter in the strong acid line, along with a flow control valve on the acid line, should produce required concentration. One may need a temperature compensator for the density meter depending on the density change with temperature. While proper design may help minimize plugging in the future the customer needs a planned shutdown to clean out his absorber to get their system back to functionality.
Click to enlarge Figure 4
Barry Bershad, Process Engineer
Clariant Corp., Coventry, England
|
JUNE'S PUZZLER |
|
A TEMA class BEM heat exchanger is the ubiquitous choice throughout the company. It serves as cooler for contact condensers and as reboiler heaters in the distillation columns. The units are made of carbon steel and have fixed tubesheets; so they are cheap, costing only $60,000 each. The cooler was designed for R-22/glycol in a cascade system on the shellside; R-22 was changed to brine. Corrosion takes a toll: these cooler are inspected every 3 months, typically rebuilt every year, and are thrown away after 4 years. Rebuild costs are about $4,000-$12,000. The reboiler heater plugs frequently --- about every three months. A recent shutdown resulted in injuries, unrelated to the work, and a fine by OSHA. The nondestructive testing technician complains frequently that it is nearly impossible to properly inspect these units with a boroscope; doing so the last time, he found a broken shell baffle tracing a neat cut into a tube. We are now considering an alternative unit: clad-Hastelloy C276 tubeside with carbon steel shell and a floating head design to allow tube sheets to be pulled for inspection. The coolers run $180,000 each but are predicted to last at least 8 years given semi-annual inspections at a cost of $2,000. Assume the new exchangers need to be rebuilt every 4 years at $10,000. Assume downtime costs $10,000/hour in lost production. Unfortunately, piping modifications, estimated at about $40,000 per unit, will be required to allow the tubesheet to be pulled. Would you go with this unit or choose something else? Send us your comments, suggestions or solutions for this question by May 5, 2006. Well include as many of them as possible in the June 2006 issue. Send visuals --- a sketch is fine. E-mail us at [email protected] or mail to ProcessPuzzler, Chemical Processing, 555 W. Pierce Rd., Suite 301, Itasca, IL 60143. Fax: 630 467-1120. Please include your name, title, location and company affiliation in the response. And, of course, if you have a process problem youd like to pose to our readers, send it along and well be pleased to consider it for publication. |




